Casa - Umago (05418)
- Superficie immobile : 131 m2
- Superficie particela : 163 m2
- Distanza dal centro : 5000 m
- Distanza dal mare : 2000 m
- Scheda descrittiva
530.000 €
| Vista sul mare : | No | Piano : | n/a |
| Parcheggio : | Si | Numero di piani : | 2 |
| Garage : | No | Numero di camere da letto : | 3 |
| Cantina : | No | Numero di bagni : | 3 |
| Possibilita d’ampliamento : | No | Anno di costruzione : | 2025 |
| Efficienza energetica | Non specificato |
GALLERIA
DESCRIZIONE DELL IMMOBILI
Immobiliare Istria, casa moderna in vendita, Umago, dintorni
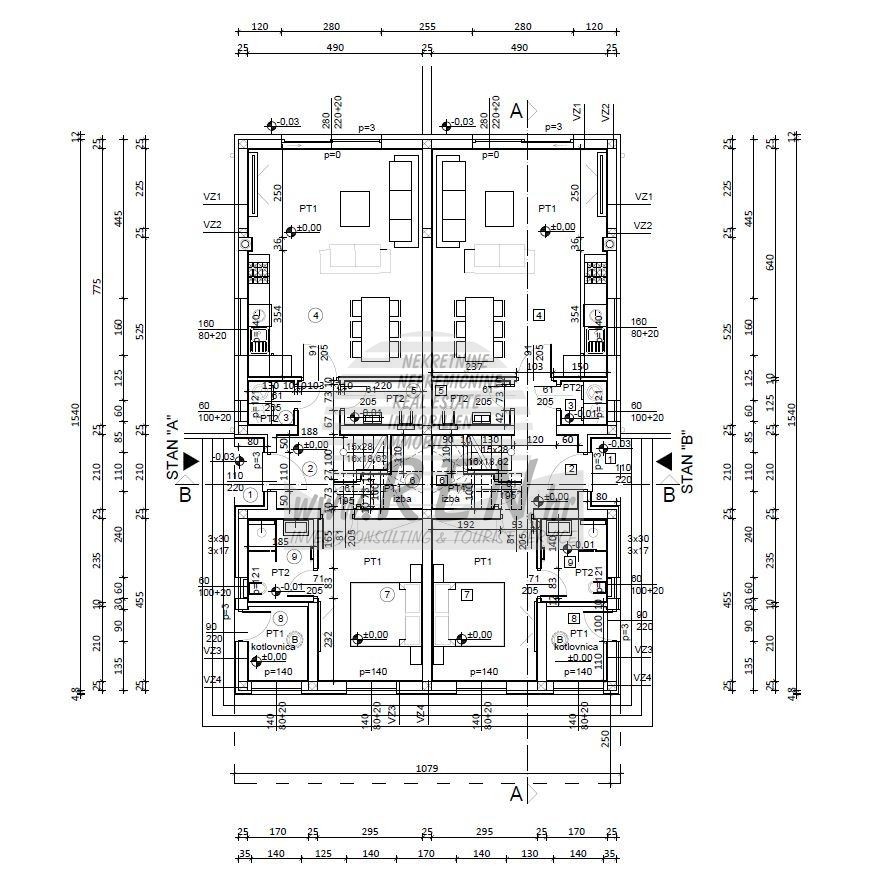
La casa ha un totale di 131 m2, il terreno ha 163 m2, è a 5 min. (2000 m) dal mare e da una bellissima spiaggia naturale, a 10 min. (5000 m) dal centro di Umago. La casa è bifamiliare e ha un piano terra e un primo piano. In costruzione. La casa è in vendita e nella fase di non ultimazione. Ha un totale di 3 camere da letto, cucina, soggiorno, 3 bagni, ripostiglio. La casa ha 2 posti auto privati, unità di aria condizionata, predisposizione per riscaldamento a pavimento, piscina.
La casa dista 200 m dal negozio, 200 m dal ristorante, 5000 m dal mercato, 5000 m dal medico, 5000 m dalla farmacia, 80 km dall'aeroporto di Pola e 10 km dall'aeroporto di Portorose, 5000 m dal porto turistico di Umago, 4000 m dai campi da golf.
Siamo a vostra disposizione per ulteriori informazioni.









